東莞市望輝機械有限公司
http://www.wlsfjw.cn/
電 話:13923413250
郵 ?箱:xwh@xwhcnc.com
地 ?址:東莞市大朗鎮犀牛陂村雅瑤街(瓦窯街)35號
1. 零件加工工藝性分析
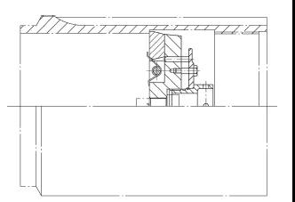
以零件尾套(見圖1)為例,它是我公司推土機行走系統的重要零部件之一,每臺兩件,年產200余臺,承擔著將中央傳動裝置動力傳動到終傳動裝置的重要作用,尾套的加工質量對推土機整機質量有著極大的影響。

圖1 尾套
尾套屬于回轉類零件, 主要加工工序都在車床完成,外圓對稱分布有兩個止動鍵槽,內孔有多級階形結構和內螺紋,鍵槽的位置精度和尺寸精度都要求較高,需要使用工裝利用兩側內孔定位進行加工,所以要先銑出,打破工件外形的完整度,因此加工內螺紋時無法使用中心架作為輔助支撐。因車內螺紋時工件受力較大,單動卡盤無法保證裝夾牢固,通常此類零件需要設計復雜的組合夾具來輔助裝夾,其裝夾過程比較復雜,裝夾效率低,而且對操作者的技術水平要求較高,導致工件的加工成本過高,并且組合夾具的設計和操作受人為因素影響較大,也給零件的加工精度造成了一定的影響。為此技術人員特別設計了該類零件專用夾具,此夾具和車床及單動卡盤配合使用,外夾內拉,使用方便快捷,裝夾牢固,可加快生產節拍,解決生產瓶頸問題。
2. 工裝設計思路
因工件外形分布有兩處對稱鍵槽,無法使用中心架,且為保護鍵槽表面不被破壞,不能使用從工件外部進行輔助裝夾的工裝;又因要對其內孔進行加工,無法在尾部使用頂尖,為了保證裝夾牢固可靠, 避免發生加工意外,特設計一套固定在車床主軸上,加工時從工件內部進行拉緊的工裝(見圖2)。此工裝通過拉釘固定拉緊,利用活動的折合壓板夾在工件內孔止口處,加工時與單動卡盤配合隨工件一起旋轉,一夾一拉,將工件牢牢固定;加工結束后,松開拉釘,旋轉夾具外側的螺紋套使工裝處于放松狀態,則工件可迅速卸下,如圖3所示。

圖2 工裝
3. 工裝結構及作用
參看圖3、圖4,該工裝主要包括螺紋套、固定壓盤、移動壓盤和折合壓板等。折合壓板有多個,壓緊在工件上,每個折合壓板都有相對應的頂銷,固定壓盤由拉釘固定在車床主軸上并與之同軸,螺紋套用于放松和夾緊工件,環狀的移動壓盤隨螺紋套一起動作,通過頂銷帶動折合壓板以達到放松和夾緊的目的。
其中,螺紋套位于固定壓盤背離車床主軸的一側并通過螺紋與固定壓盤配合;螺紋套上還裝有移動壓盤,移動壓盤的一側靠在螺紋套外柱面上的梯臺上,另一側由安裝在螺紋套上的軸用彈性擋圈限位;固定壓盤上通過銷軸安裝有4個折合壓板,每個折合壓板和固定壓盤之間都裝有一個卡簧;4個折合壓板靠在固定壓盤的靠近車床主軸的一側并繞主軸軸線均勻分布,每個折合壓板的外端夾在待車削工件的內孔臺階上,內端通過銷軸與固定壓盤轉動聯接;固定壓盤上還裝有8個頂銷,每兩個頂銷對應一個折合壓板,頂銷一端被移動壓盤壓緊,另一端頂住對應的折合壓板外端;固定壓盤上還裝有4個導向螺釘,穿過移動壓盤上的導向孔用于給其導向;銷軸尾部裝有止脫用的開口銷;順時針旋轉螺紋套可以通過移動壓盤帶動頂銷使折合壓板翹起,此時折合壓板外側組成的圓弧直徑小于工件內孔直徑,工件不受拉緊力,可輕松卸下;卸下工件后,逆時針旋轉螺紋套,折合壓板在卡簧作用下復位,此時可裝夾工件。
工作原理:在對工件進行車內孔或內螺紋加工時,先將該工裝固定在車床主軸的拉釘上,工件通過其內孔套在工裝上,因孔徑小于折合壓板組成的外圓,工件裝夾過程會使折合壓板翹起,直至內孔直徑變大時會由卡簧帶動復位,然后用單動卡盤夾緊工件,通過拉釘把固定壓盤拉緊,則折合壓板就夾住了工件內孔的臺階面, 完成了工件的裝夾,然后即可進行加工;工件加工完后,松開拉釘,順時針旋轉螺紋套,使得折合壓板翹起從而放松工件,然后即可卸下工件(再次裝夾工件前需要逆時針旋轉螺紋套使折合壓板在卡簧的作用下復位)。
優化方面:車床裝夾時拉釘自動將工裝拉緊,快速可靠,節約大量人工裝夾時間,且工裝固定在主軸上,無論是裝夾工件還是卸下工件都不需要重新定位裝
夾,操作簡單,加工精度高,而且適用范圍廣,能用作多種結構類似零件的車夾具。

圖3 工件裝夾示意

圖4 工裝結構
1—開口銷 2—拉釘 3—卡簧 4—銷軸 5—折合壓板 6—固定壓盤 7—頂銷 8—移動壓盤 9—導向螺釘 10—彈性擋圈 11—螺紋套
4. 結語
采用此工裝加工尾套類精度要求高又難裝夾的回轉類零件,可實現安全快速裝夾的目的,減少裝夾時間和難度,提高加工質量,節約人工成本,加快生產節拍。目前已生產500余件,完全符合圖樣尺寸及裝配要求,本設計為我們打開了思路,大量使用設計精巧的工裝能夠省時省力,還可以大幅度地降低生產成本。
|
鑫騰輝客服
|